Обновлено: 14 декабря 2025
Цены на квартиры в ЖК Тетрис
⚠️ Уточняйте информацию о ценах и наличии
Тип дома
Кирпично-монолитный
Подземный паркинг
Есть
Варианты отделки
Без отделки; Под ключ; Предчистовая; С отделкой
Рядом с метро
Да
Срок сдачи
2025-2026
Тип
Квартиры
Огороженная территория
Да
Класс-жилья
Комфорт-класс
Площадь от
29.15 м2
Этажей
28 - 31
Высота потолков
2.95
Надежный застройщик
Ипотека
Рассрочка
Trade-in
ЖК «Тетрис» представляет собой проект комфорт-класса. Новый квартал возводится          на Большой Воскресенской улице Красногорска Московской области.
 
Всего в проекте 9 корпусов разной этажности – от 28 до 31 этажа. Покупателям предлагают студии и одно-, двух- и трехкомнатные квартиры площадью от 26 до 80 кв. м. Можно выбрать варианты с мастер-спальнями, расширенными кухнями-столовыми, гардеробными и дополнительными санузлами. Есть варианты как с отделкой, так и без нее.
 
В комплексе предусмотрена вся необходимая инфраструктура: собственная школа и детский сад, магазины и сервисы, а для автомобилей оборудован подземный паркинг. Внутренняя территория предусматривает собственный двор-парк, детские и спортивные площадки, а также уютные зоны отдыха. Весь комплекс находится под круглосуточным видеонаблюдением.
 
Рядом с новым кварталом есть торговый центр, супермаркеты, кафе и рестораны, спортивные и культурные центры. Транспортная доступность комплекса обеспечивается станцией МЦД «Павшино», которая находится практически около новостройки. Кроме того, рядом проходит Волоколамское шоссе с удобными развязками и остановками общественного транспорта.

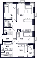
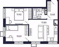
Планировки

загрузка карты...
Отзывов ещё нет, будьте первыми!
Оставить отзыв

Динамика средней цены в ЖК за кв.м.

Квартиры в новостройке

Студии
1-комнатные
2-комнатные
3-комнатные
ЖК Тетрис
Студия
Цена
11 505 039 руб.
Площадь
29.15 м²
Этаж
28 из 28
Подробнее
ЖК Тетрис
Студия
Цена
10 874 890 руб.
Площадь
29.84 м²
Этаж
21 из 28
Подробнее
ЖК Тетрис
Студия
Цена
10 936 089 руб.
Площадь
29.15 м²
Этаж
20 из 28
Подробнее
ЖК Тетрис
Студия
Цена
11 525 939 руб.
Площадь
29.84 м²
Этаж
28 из 28
Подробнее
ЖК Тетрис
1-комнатная
Цена
13 201 026 руб.
Площадь
39.96 м²
Этаж
19 из 28
Подробнее
ЖК Тетрис
1-комнатная
Цена
13 737 566 руб.
Площадь
44.51 м²
Этаж
17 из 28
Подробнее
ЖК Тетрис
1-комнатная
Цена
13 642 124 руб.
Площадь
43.95 м²
Этаж
15 из 28
Подробнее
ЖК Тетрис
1-комнатная
Цена
15 322 451 руб.
Площадь
43.43 м²
Этаж
28 из 28
Подробнее
ЖК Тетрис
2-комнатная
Цена
19 122 245 руб.
Площадь
72.83 м²
Этаж
26 из 28
Подробнее
ЖК Тетрис
2-комнатная
Цена
20 474 334 руб.
Площадь
72.83 м²
Этаж
28 из 28
Подробнее
ЖК Тетрис
2-комнатная
Цена
17 077 090 руб.
Площадь
62.98 м²
Этаж
15 из 28
Подробнее
ЖК Тетрис
2-комнатная
Цена
17 001 706 руб.
Площадь
52.27 м²
Этаж
24 из 28
Подробнее
ЖК Тетрис
3-комнатная
Цена
20 653 878 руб.
Площадь
81.31 м²
Этаж
11 из 28
Подробнее
ЖК Тетрис
3-комнатная
Цена
20 076 951 руб.
Площадь
81.01 м²
Этаж
8 из 28
Подробнее
ЖК Тетрис
3-комнатная
Цена
20 037 580 руб.
Площадь
81.01 м²
Этаж
7 из 28
Подробнее
ЖК Тетрис
3-комнатная
Цена
20 693 720 руб.
Площадь
81.31 м²
Этаж
12 из 28
Подробнее

Похожие новостройки

  • 1 комн., от5.3 млн. р.
  • 2 комн., от6.5 млн. р.
  • 3 комн., от8.3 млн. р.
  • 4+ комн., от13.5 млн. р.
  • 1 комн., от4.2 млн. р.
  • 2 комн., от5.6 млн. р.
  • 3 комн., от7.2 млн. р.
  • Срок сдачиСдан
  • КлассЭконом-класс
  • Цена отпо запросу
  • Срок сдачиСдан
  • КлассЭконом-класс
  • Цена отпо запросу
Оформить заявку
Заказать обратный звонок
Задать вопрос
Оформить заявку